
Pets are not allowed in the establishment.
Children of all ages are welcome.
No cot available.
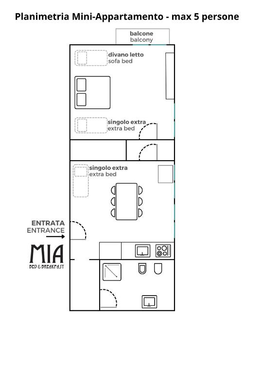
No extra bed available.
Cards accepted for booking

Please inform in advance of your expected arrival time. You can use the Special Requests box when booking, or contact the property directly with the contact details provided in your confirmation.
This property will not accommodate hen, stag or similar parties.
Managed by a private host